
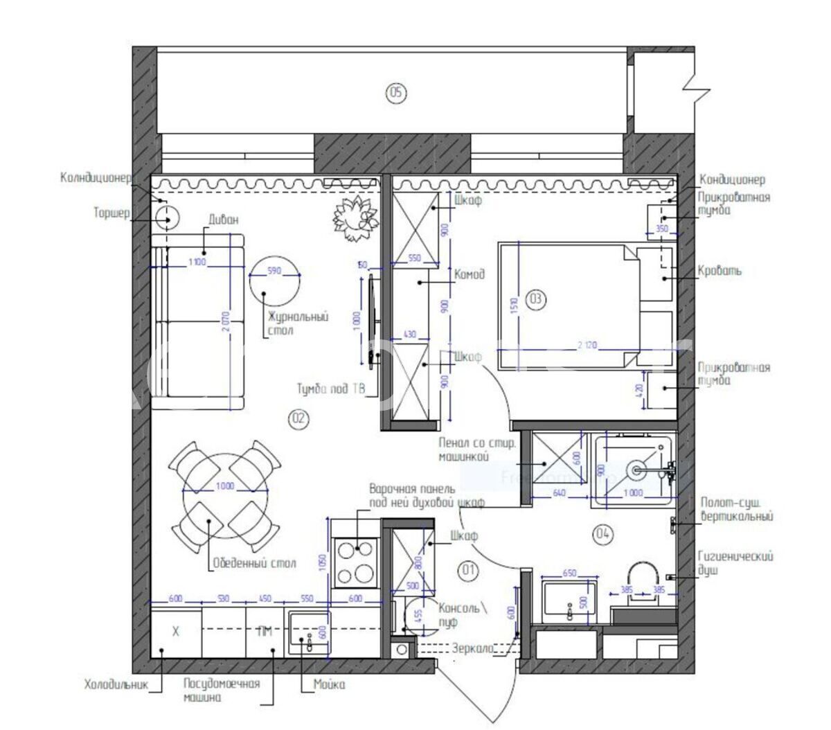
Дизайн-проект этой двухкомнатной квартиры выполнен в современном стиле с элементами сканди. Разнообразные текстуры, современная минималистичная мебель, сдержанная цветовая гамма с яркими природными акцентами, ультрамодные светильники - все это выглядит необычайно гармонично и целостно.
Дизайн-проект этой двухкомнатной квартиры выполнен в современном стиле с элементами сканди. Разнообразные текстуры, современная минималистичная мебель, сдержанная цветовая гамма с яркими природными акцентами, ультрамодные светильники - все это выглядит необычайно гармонично и целостно.
