
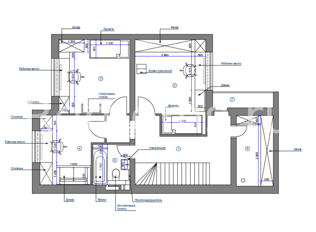
Дизайн-проект дома выполнен в стиле модернизм. Четкая геометрия пространства, интересные архитектурные формы, обилие разнообразных текстур, современные элементы декора в интерьере смотрятся необычайно гармонично и целостно. Разноплановое освещение придает пространству индивидуальный характер, а светлые цвета делают пространство еще более просторным и стильным.
Дизайн-проект дома выполнен в стиле модернизм. Четкая геометрия пространства, интересные архитектурные формы, обилие разнообразных текстур, современные элементы декора в интерьере смотрятся необычайно гармонично и целостно. Разноплановое освещение придает пространству индивидуальный характер, а светлые цвета делают пространство еще более просторным и стильным.
