

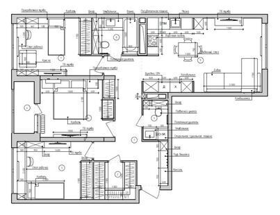
Дизайн-проект четырехкомнатной квартиры выполнен в стиле модернизм. Четкая геометрия пространства, интересные архитектурные формы, обилие разнообразных текстур, современные элементы декора в интерьере смотрятся необычайно гармонично и целостно. Разноплановое освещение придает пространству индивидуальный характер, а гармоничное сочетание светлых и темных тонов делает пространство стильным и уникальным.
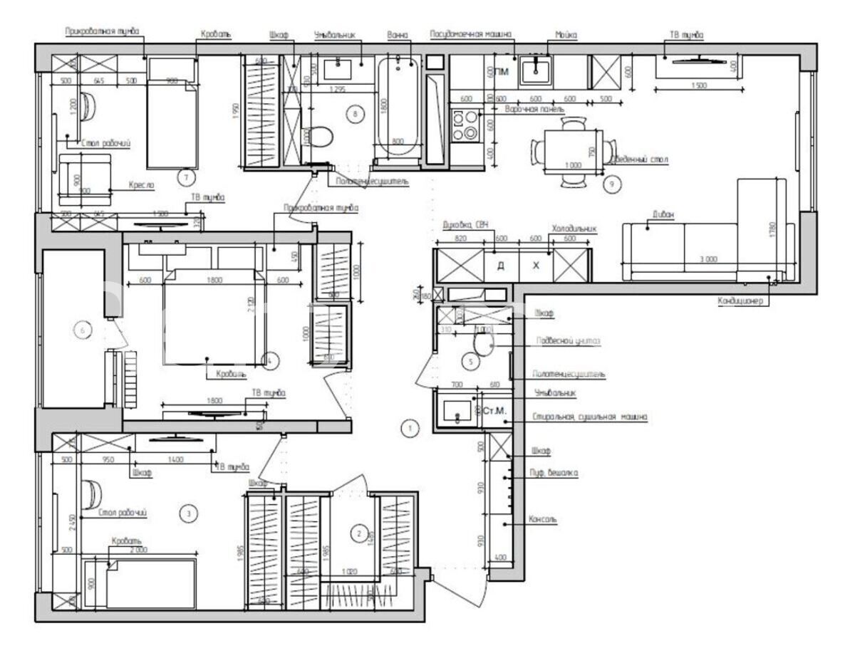
Дизайн-проект четырехкомнатной квартиры выполнен в стиле модернизм. Четкая геометрия пространства, интересные архитектурные формы, обилие разнообразных текстур, современные элементы декора в интерьере смотрятся необычайно гармонично и целостно. Разноплановое освещение придает пространству индивидуальный характер, а гармоничное сочетание светлых и темных тонов делает пространство стильным и уникальным.
