

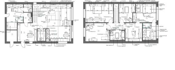
Дизайн этого дома выдержан в современном стиле. Цветовая гамма с использованием контрастных тонов делает интерьер ультрамодным и красивым. Интересная архитектура пространства, комбинация различных материалов и оригинальный световой сценарий - все это работает на поддержание концепции современного дизайна.
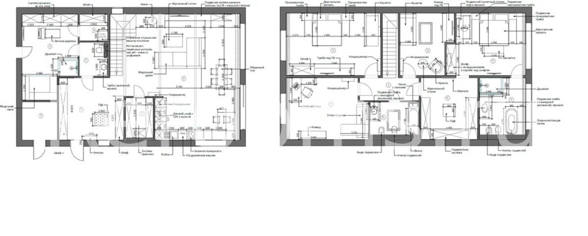
Дизайн этого дома выдержан в современном стиле. Цветовая гамма с использованием контрастных тонов делает интерьер ультрамодным и красивым. Интересная архитектура пространства, комбинация различных материалов и оригинальный световой сценарий - все это работает на поддержание концепции современного дизайна.
