

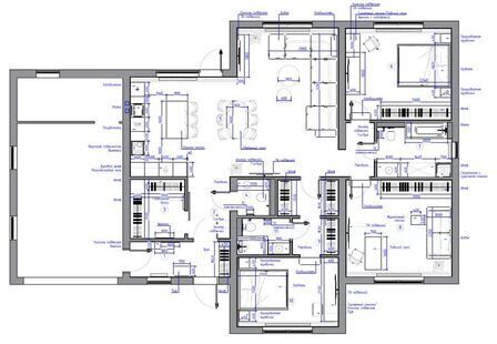
Интерьеры в стиле контемпорари полностью соответствуют современным требованиям эстетики и функциональности. Базовая палитра, выбранная для оформления этого дома, достаточно нейтральна и создает идеальную атмосферу для отдыха. Интересные формы и чистые линии - одна из главных особенностей интерьера в стиле контемпорари, нашла свое отражение в четкой геометрии потолков и стен, мебели и предметах декора.
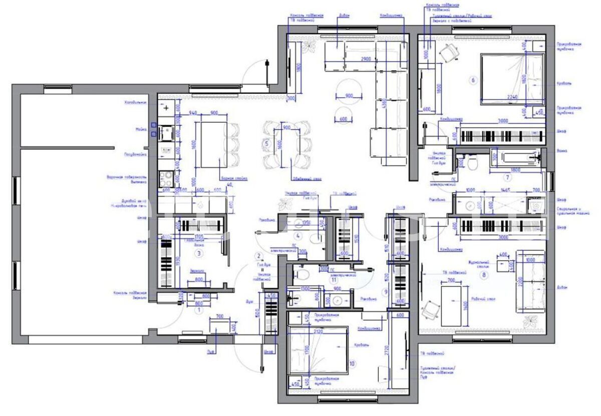
Интерьеры в стиле контемпорари полностью соответствуют современным требованиям эстетики и функциональности. Базовая палитра, выбранная для оформления этого дома, достаточно нейтральна и создает идеальную атмосферу для отдыха. Интересные формы и чистые линии - одна из главных особенностей интерьера в стиле контемпорари, нашла свое отражение в четкой геометрии потолков и стен, мебели и предметах декора.
