

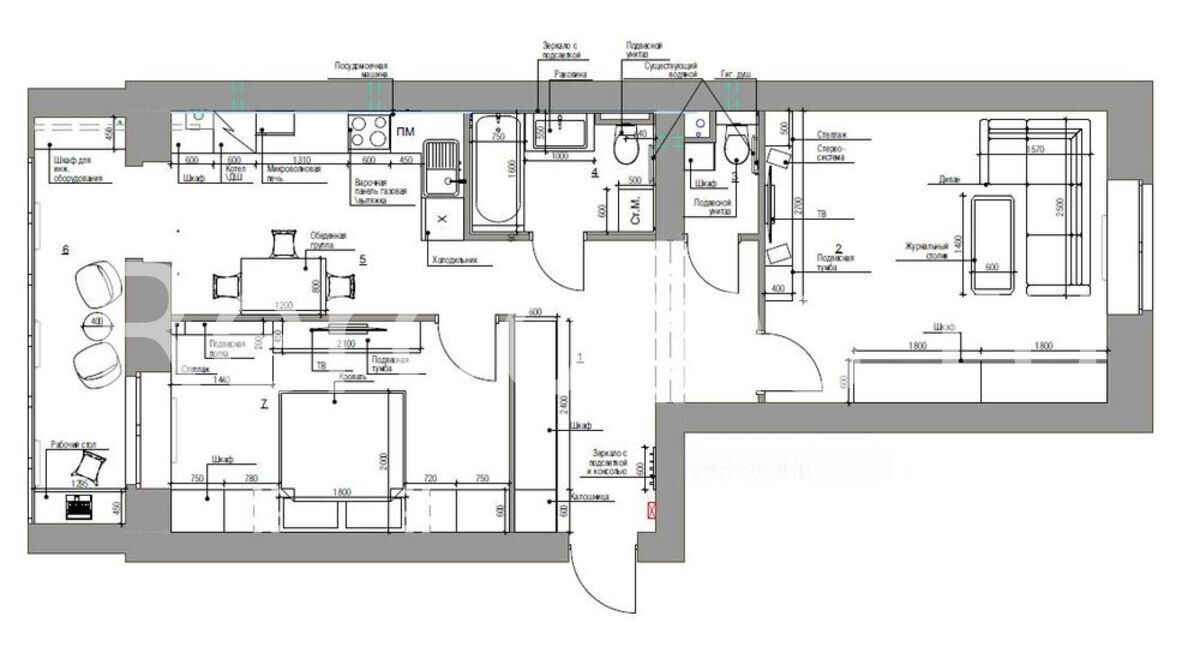
Эта двухкомнатная квартира оформлена в актуальном современном стиле. Элегантная бежево-нейтральная гамма подчёркивает утончённость интерьера, а выразительные архитектурные элементы, разнообразные материалы и грамотное освещение создают цельный и продуманный образ.
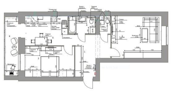
Эта двухкомнатная квартира оформлена в актуальном современном стиле. Элегантная бежево-нейтральная гамма подчёркивает утончённость интерьера, а выразительные архитектурные элементы, разнообразные материалы и грамотное освещение создают цельный и продуманный образ.
