
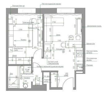
Интерьер этой двухкомнатной квартиры оформлен в современном ключе: гармоничная цветовая палитра придаёт пространству свежий и стильный вид. Оригинальные архитектурные детали, разнообразие текстур и необычные световые акценты органично сочетаются, создавая цельную и продуманную концепцию.
Интерьер этой двухкомнатной квартиры оформлен в современном ключе: гармоничная цветовая палитра придаёт пространству свежий и стильный вид. Оригинальные архитектурные детали, разнообразие текстур и необычные световые акценты органично сочетаются, создавая цельную и продуманную концепцию.
