

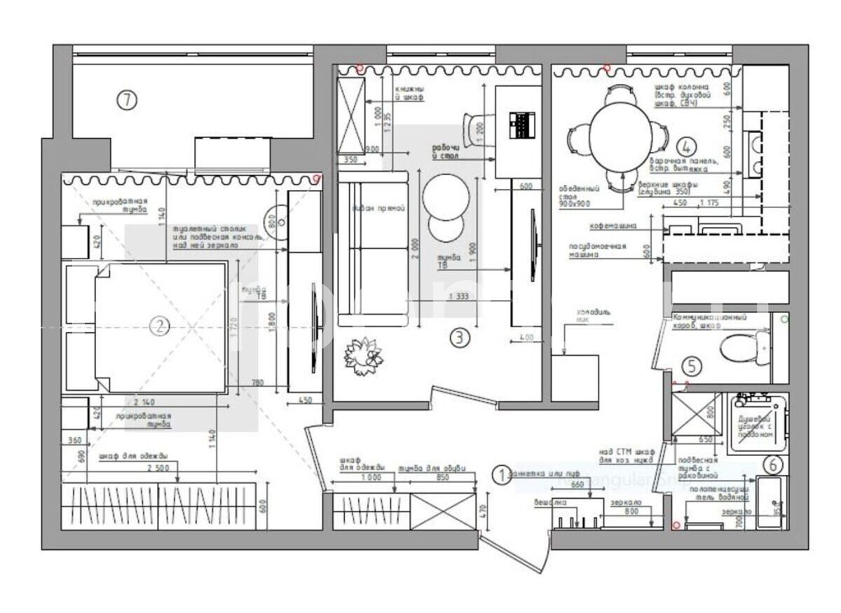
Интерьер этой квартиры выполнен в современном стиле. Нейтральная бежево-серая палитра придаёт пространству актуальность и элегантность. Выразительная архитектура, разнообразие фактур и тщательно продуманное освещение формируют стильную и умироторяющую атмосферу.
Интерьер этой квартиры выполнен в современном стиле. Нейтральная бежево-серая палитра придаёт пространству актуальность и элегантность. Выразительная архитектура, разнообразие фактур и тщательно продуманное освещение формируют стильную и умироторяющую атмосферу.
