

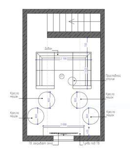
Этаж дома, где располагается кинотеатр с удобным диваном и мягкими креслами для уютных посиделок, выполнен в современном стиле и отличается удобством и эстетичным видом. Темная цветовая гамма, современная мебель и техника все идеально подходит для домашних киносеансов.
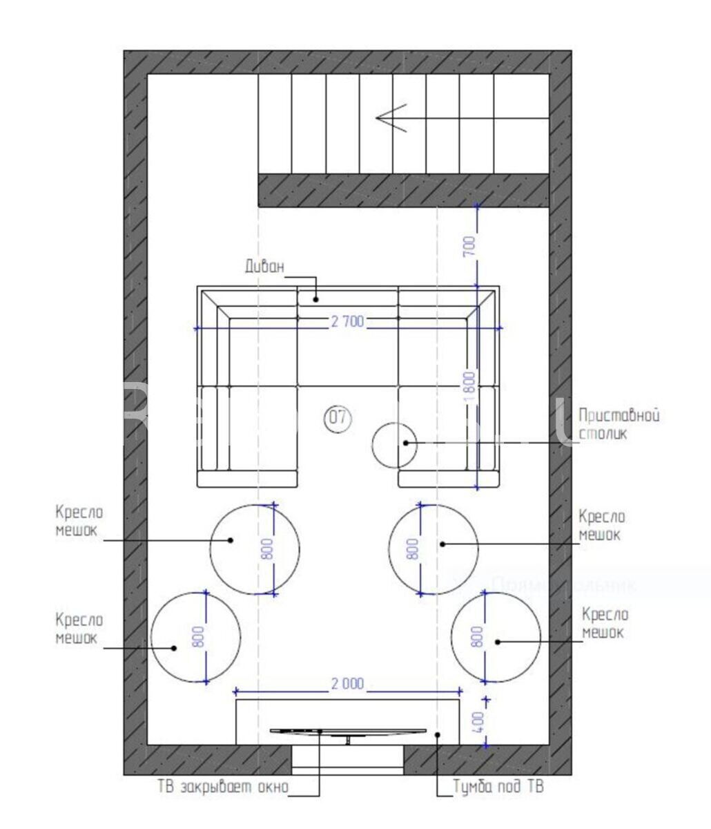
Этаж дома, где располагается кинотеатр с удобным диваном и мягкими креслами для уютных посиделок, выполнен в современном стиле и отличается удобством и эстетичным видом. Темная цветовая гамма, современная мебель и техника все идеально подходит для домашних киносеансов.
