

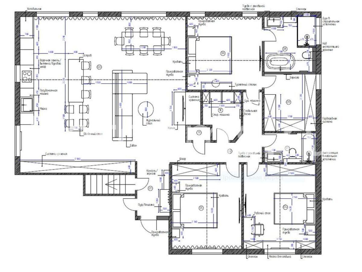
Дизайн этого дома выдержан в современном стиле с элементами арт-деко. Светлая цветовая гамма в сочетании с золотыми деталями делает интерьер ультрамодным и красивым. Интересная архитектура пространства, комбинация различных материалов и оригинальный световой сценарий - все это работает на поддержание концепции современного дизайна.
Дизайн этого дома выдержан в современном стиле с элементами арт-деко. Светлая цветовая гамма в сочетании с золотыми деталями делает интерьер ультрамодным и красивым. Интересная архитектура пространства, комбинация различных материалов и оригинальный световой сценарий - все это работает на поддержание концепции современного дизайна.
