

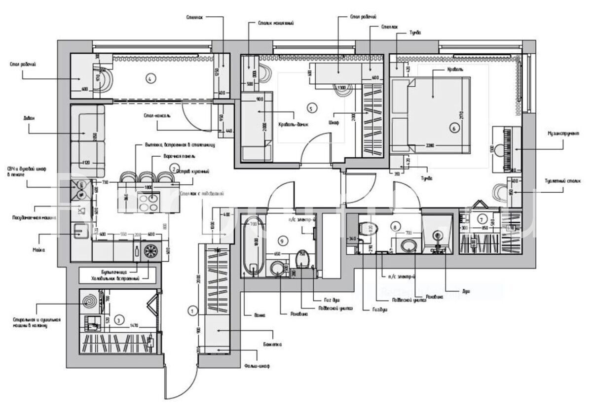
Современный интерьер этой трёхкомнатной квартиры строится на тонкой игре форм и материалов. Спокойные оттенки с яркими акцентами наполняют пространство воздушной элегантностью, а выразительные линии и акценты света связывают все элементы в цельную композицию.
Современный интерьер этой трёхкомнатной квартиры строится на тонкой игре форм и материалов. Спокойные оттенки с яркими акцентами наполняют пространство воздушной элегантностью, а выразительные линии и акценты света связывают все элементы в цельную композицию.
