

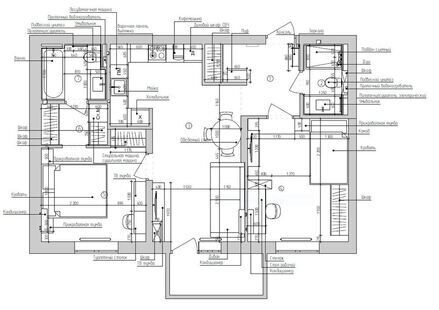
Дизайн этой трёхкомнатной квартиры выполнен в минималистичном стиле. Лаконичные формы и спокойная цветовая палитра создают ощущение гармонии и уюта. Каждый элемент интерьера тщательно продуман и органично дополняет общую концепцию, подчёркивая её цельность.
Дизайн этой трёхкомнатной квартиры выполнен в минималистичном стиле. Лаконичные формы и спокойная цветовая палитра создают ощущение гармонии и уюта. Каждый элемент интерьера тщательно продуман и органично дополняет общую концепцию, подчёркивая её цельность.
