

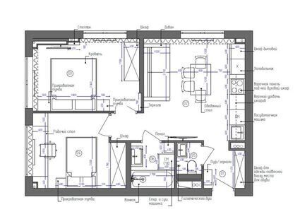
Интерьер этой трехкомнатной квартиры выдержан в стиле минимализм. Чистота линий, простые формы и сдержанные цвета создают в помещении гармоничную и уютную атмосферу. Все помещения квартиры функциональны и необычайно эстетичны.
Интерьер этой трехкомнатной квартиры выдержан в стиле минимализм. Чистота линий, простые формы и сдержанные цвета создают в помещении гармоничную и уютную атмосферу. Все помещения квартиры функциональны и необычайно эстетичны.
