

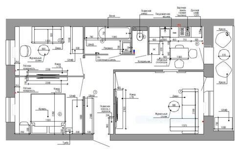
Архитектура и интерьер этой квартиры воплощают дух модернизма: нестандартные формы, богатство фактур и свежий подход к традиционным решениям. Пространство объединено в цельную гармоничную композицию с ярким характером. Сценарное освещение раскрывает индивидуальность пространства, а контрастные акценты усиливают выразительность и придают изысканное очарование.
Архитектура и интерьер этой квартиры воплощают дух модернизма: нестандартные формы, богатство фактур и свежий подход к традиционным решениям. Пространство объединено в цельную гармоничную композицию с ярким характером. Сценарное освещение раскрывает индивидуальность пространства, а контрастные акценты усиливают выразительность и придают изысканное очарование.
