

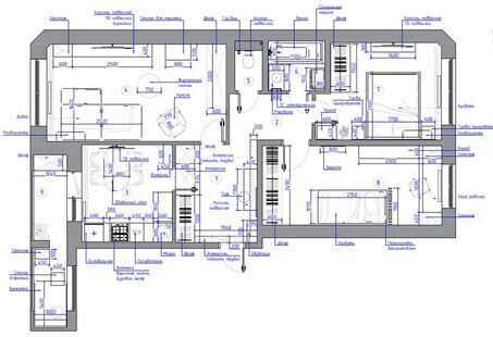
Проект этой трехкомнатной квартиры, выполненный в стиле контемпорари, получился очень уютным и гармоничным. Светлая цветовая гамма, использованная в отделке, визуально увеличила пространство, наполнив его воздухом и светом. Интересные формы и чистые линии - одна из главных особенностей интерьера в стиле контемпорари, нашла свое отражение в четкой геометрии потолков и стен, мебели и лаконичных предметах декора.
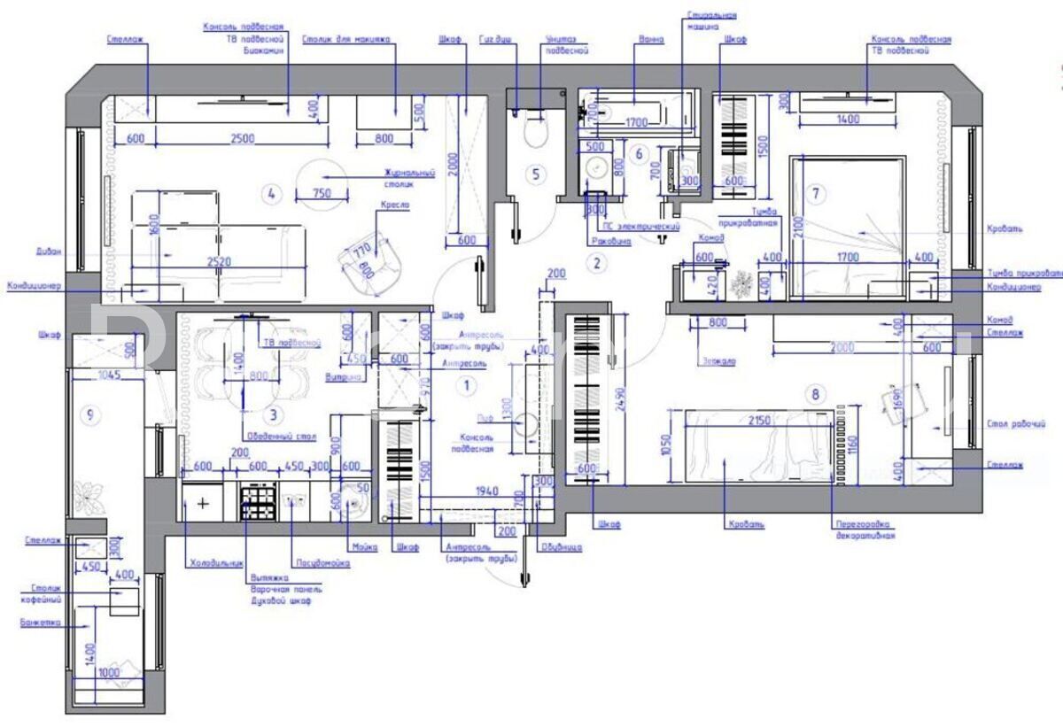
Проект этой трехкомнатной квартиры, выполненный в стиле контемпорари, получился очень уютным и гармоничным. Светлая цветовая гамма, использованная в отделке, визуально увеличила пространство, наполнив его воздухом и светом. Интересные формы и чистые линии - одна из главных особенностей интерьера в стиле контемпорари, нашла свое отражение в четкой геометрии потолков и стен, мебели и лаконичных предметах декора.
