

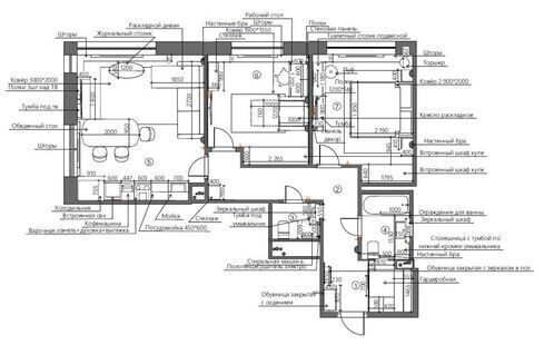
Интерьер в стиле модернизм сочетает в себе утонченность и актуальный современный облик. Оригинальные дизайнерские решения, сочетание различных материалов и текстур, изысканная палитра и эргономичная мебель — все элементы этой квартиры гармонично поддерживают единую стилистическую концепцию.
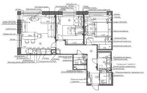
Интерьер в стиле модернизм сочетает в себе утонченность и актуальный современный облик. Оригинальные дизайнерские решения, сочетание различных материалов и текстур, изысканная палитра и эргономичная мебель — все элементы этой квартиры гармонично поддерживают единую стилистическую концепцию.
