
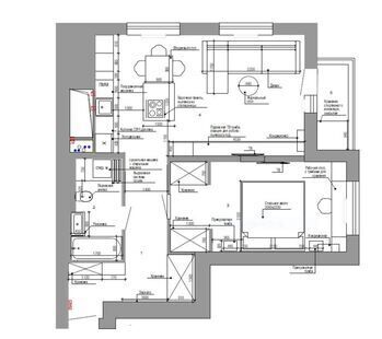
Дизайн-проект двухкомнатной квартиры выполнен в современном стиле с элементами сканди. Обилие разнообразных текстур, современные элементы декора в интерьере смотрятся необычайно гармонично и целостно. Разноплановое освещение придает помещению индивидуальный характер, а гармоничное сочетание цветов делает пространство стильным и уникальным.
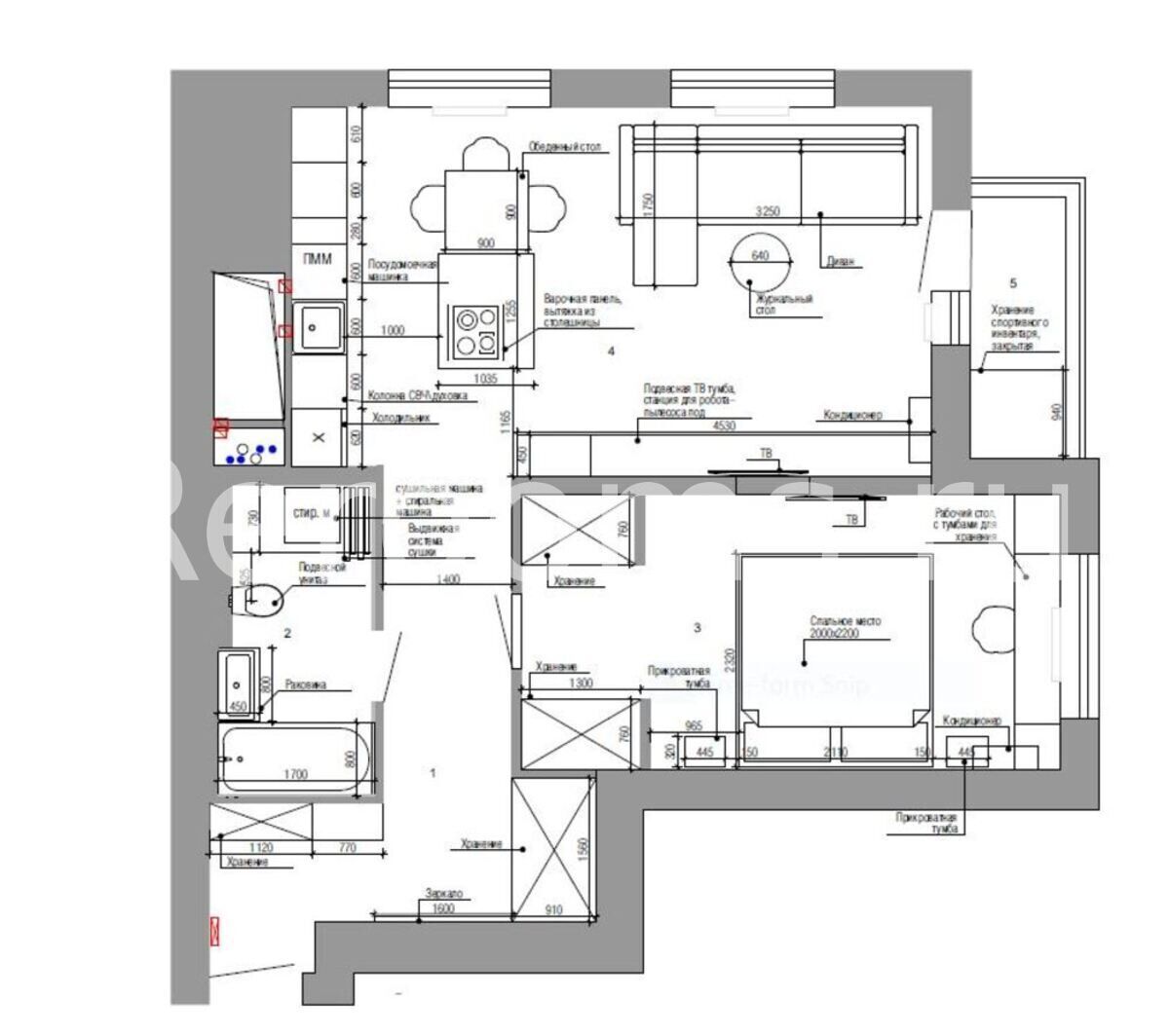
Дизайн-проект двухкомнатной квартиры выполнен в современном стиле с элементами сканди. Обилие разнообразных текстур, современные элементы декора в интерьере смотрятся необычайно гармонично и целостно. Разноплановое освещение придает помещению индивидуальный характер, а гармоничное сочетание цветов делает пространство стильным и уникальным.
