

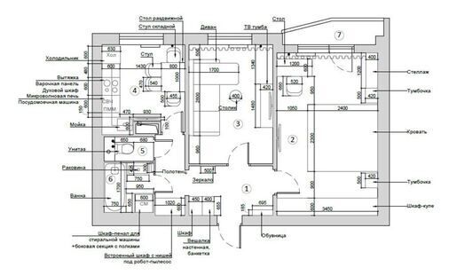
Дизайн этой квартиры выдержан в современном стиле. Гармоничное сочетание цветов, комбинация различных материалов и оригинальный световой сценарий - все это работает на поддержание концепции современного дизайна.
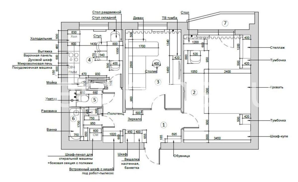
Дизайн этой квартиры выдержан в современном стиле. Гармоничное сочетание цветов, комбинация различных материалов и оригинальный световой сценарий - все это работает на поддержание концепции современного дизайна.
