

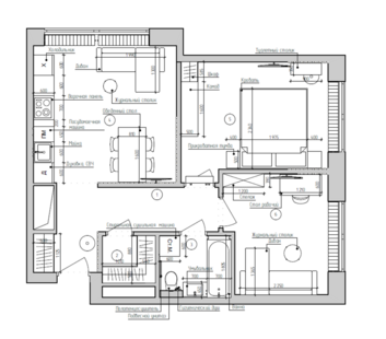
Интерьер, оформленный в стиле модернизм, отличается удобством и ультрасовременным видом. Интересные архитектурные формы, гармоничная цветовая гамма, удобная и функциональная мебель - все это придает пространству этой квартиры современный вид и работает на поддержание выбранной стилистической концепции.
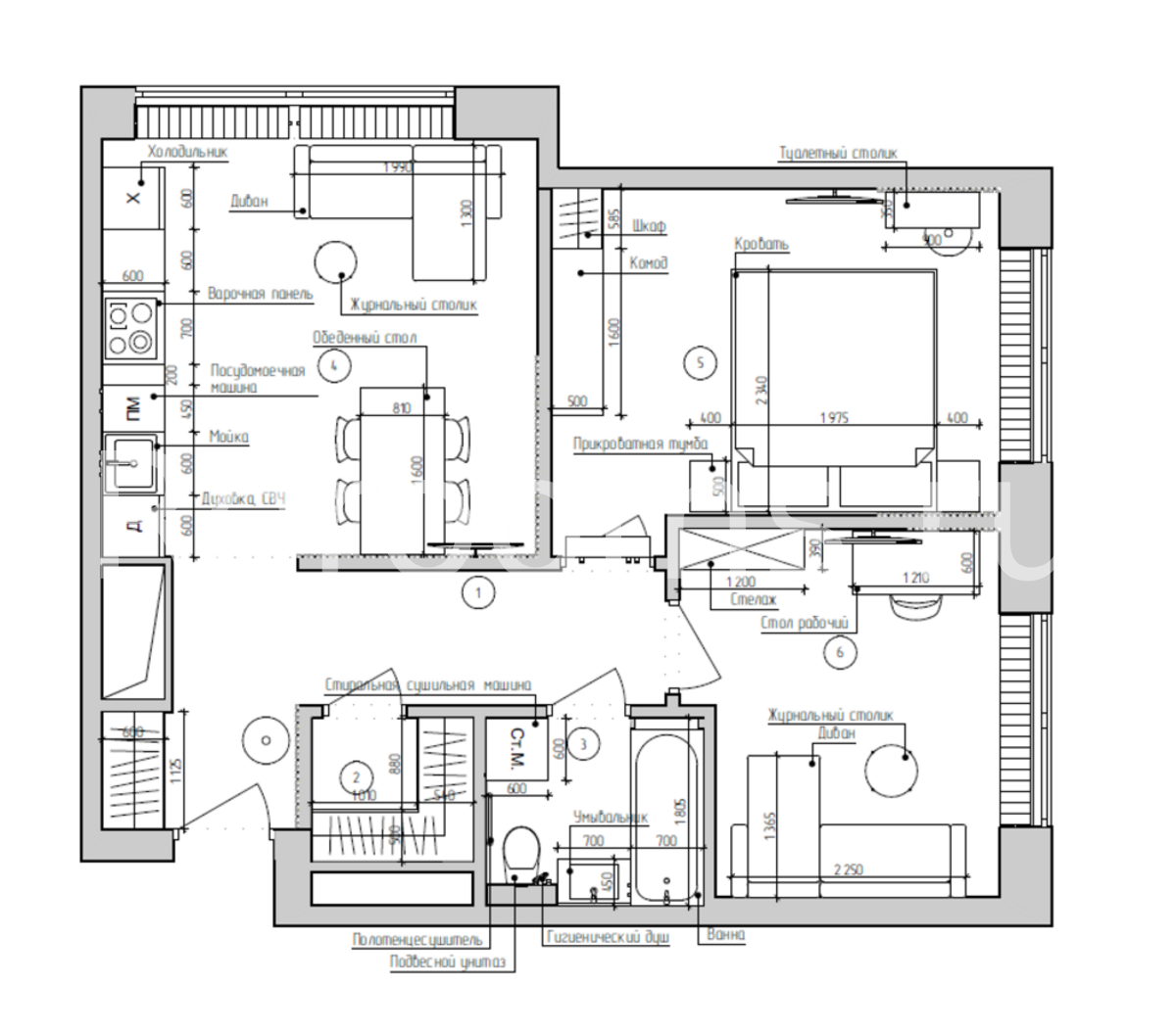
Интерьер, оформленный в стиле модернизм, отличается удобством и ультрасовременным видом. Интересные архитектурные формы, гармоничная цветовая гамма, удобная и функциональная мебель - все это придает пространству этой квартиры современный вид и работает на поддержание выбранной стилистической концепции.
