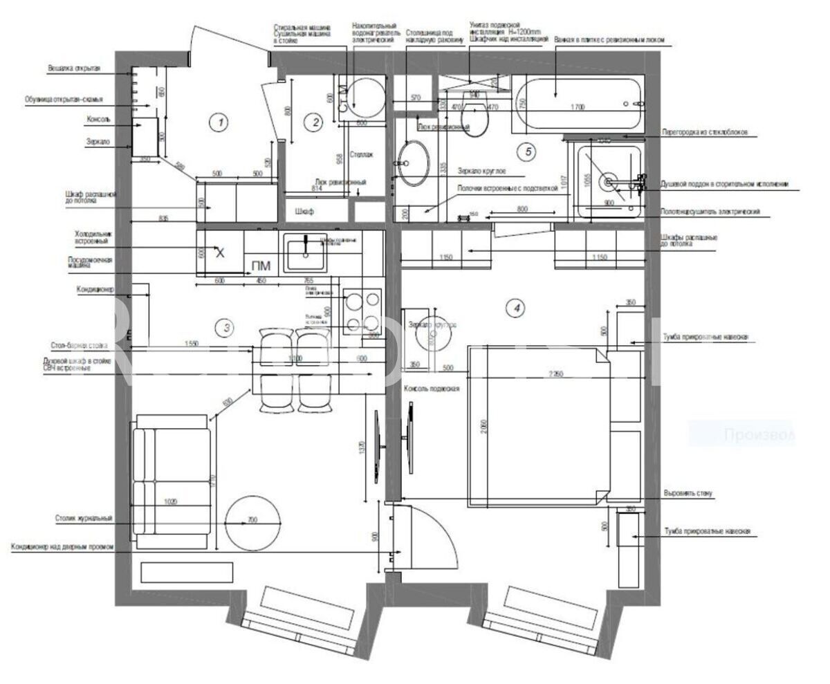
Стиль контемпорари идеально подходит тем, кто предпочитает комфорт и современный подход к оформлению интерьера. Дизайн этой двухкомнатной квартиры выполнен в сдержанной цветовой гамме. Эффект "живого" пространства здесь достигается за счет сочетания различных текстур и материалов.
Стиль контемпорари идеально подходит тем, кто предпочитает комфорт и современный подход к оформлению интерьера. Дизайн этой двухкомнатной квартиры выполнен в сдержанной цветовой гамме. Эффект "живого" пространства здесь достигается за счет сочетания различных текстур и материалов.
