
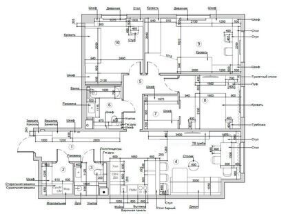
Дизайн этой квартиры выдержан в современном стиле. Цветовая гамма, построенная на контрастах, делает интерьер ультрамодным и красивым. Интересная архитектура пространства, комбинация различных материалов и оригинальный световой сценарий - все это работает на поддержание концепции современного дизайна.
Дизайн этой квартиры выдержан в современном стиле. Цветовая гамма, построенная на контрастах, делает интерьер ультрамодным и красивым. Интересная архитектура пространства, комбинация различных материалов и оригинальный световой сценарий - все это работает на поддержание концепции современного дизайна.
