
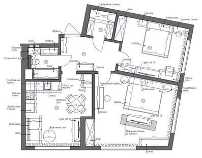
Дизайн квартиры выдержан в современном стиле. Сдержанная цветовая гамма создаёт атмосферу лёгкости, а продуманные архитектурные приёмы, разнообразие фактур и нестандартные световые решения подчеркивают единство интерьера.
Дизайн квартиры выдержан в современном стиле. Сдержанная цветовая гамма создаёт атмосферу лёгкости, а продуманные архитектурные приёмы, разнообразие фактур и нестандартные световые решения подчеркивают единство интерьера.
