

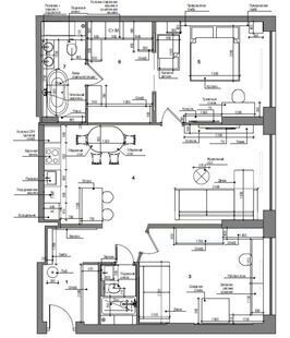
Дизайн этой трехкомнатной квартиры выдержан в духе минимализма. Четкие линии, лаконичные формы и сдержанная палитра наполняют пространство гармонией и уютом. Каждый элемент интерьера продуман до мелочей, органично вписываясь в общую концепцию и подчеркивая ее целостность.
Дизайн этой трехкомнатной квартиры выдержан в духе минимализма. Четкие линии, лаконичные формы и сдержанная палитра наполняют пространство гармонией и уютом. Каждый элемент интерьера продуман до мелочей, органично вписываясь в общую концепцию и подчеркивая ее целостность.
