

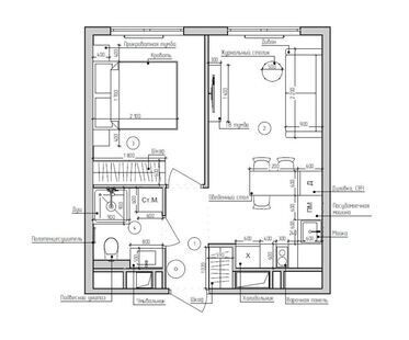
Дизайн этой квартиры выдержан в современном стиле. Сдержанная цветовая гамма с контрастными акцентами делает интерьер ультрамодным и красивым. Интересная архитектура пространства, комбинация различных материалов и оригинальный световой сценарий - все это работает на поддержание концепции современного дизайна.
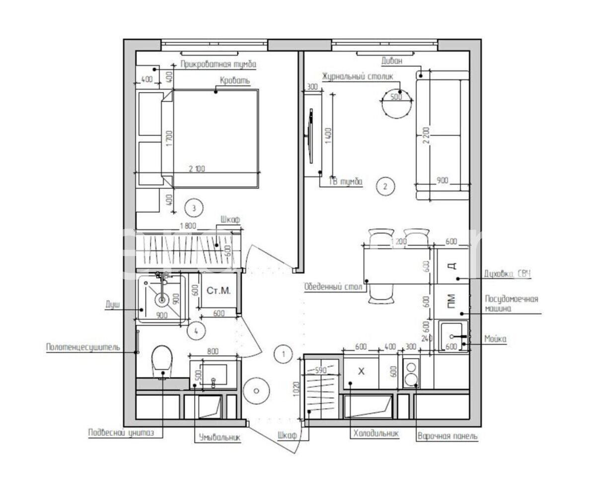
Дизайн этой квартиры выдержан в современном стиле. Сдержанная цветовая гамма с контрастными акцентами делает интерьер ультрамодным и красивым. Интересная архитектура пространства, комбинация различных материалов и оригинальный световой сценарий - все это работает на поддержание концепции современного дизайна.
