
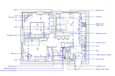
Разрабатывая проект этой двухкомнатной квартиры, дизайнер ориентировалась на основы современного стиля. Функционализм и эстетическая привлекательность здесь на главных ролях. Палитра с использованием различных оттенков серого и зеленого цветов придает пространству ультрамодный вид, а наличие древесных текстур делает интерьер очень уютными и красивым.
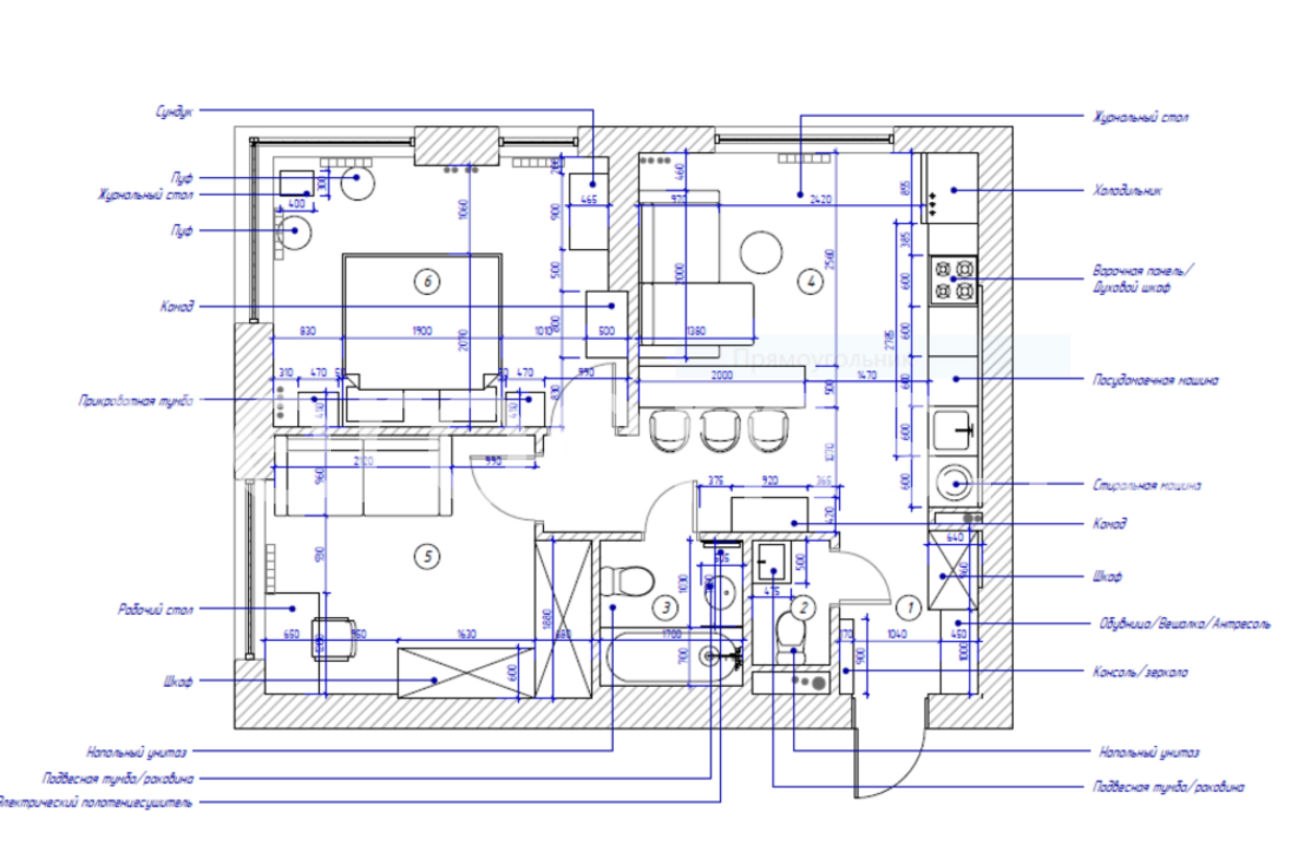
Разрабатывая проект этой двухкомнатной квартиры, дизайнер ориентировалась на основы современного стиля. Функционализм и эстетическая привлекательность здесь на главных ролях. Палитра с использованием различных оттенков серого и зеленого цветов придает пространству ультрамодный вид, а наличие древесных текстур делает интерьер очень уютными и красивым.
