

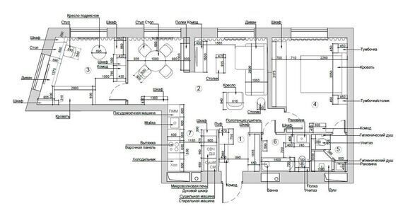
Эклектика считается одним из самых сложных, но в то же время самым интересным стилем в оформлении интерьера. В эклектичном пространстве черты разных дизайнерских направлений дополняют и подчеркивают друг друга. В интерьере этой трехкомнатной квартиры все очень гармонично и идеально соответствует выбранной концепции. Здесь идеально соседствуют модернизм, сканди, классика и стиль прованс. Материалы и элементы декора отличаются высоким качеством и эстетичным видом.
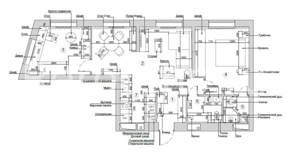
Эклектика считается одним из самых сложных, но в то же время самым интересным стилем в оформлении интерьера. В эклектичном пространстве черты разных дизайнерских направлений дополняют и подчеркивают друг друга. В интерьере этой трехкомнатной квартиры все очень гармонично и идеально соответствует выбранной концепции. Здесь идеально соседствуют модернизм, сканди, классика и стиль прованс. Материалы и элементы декора отличаются высоким качеством и эстетичным видом.
