

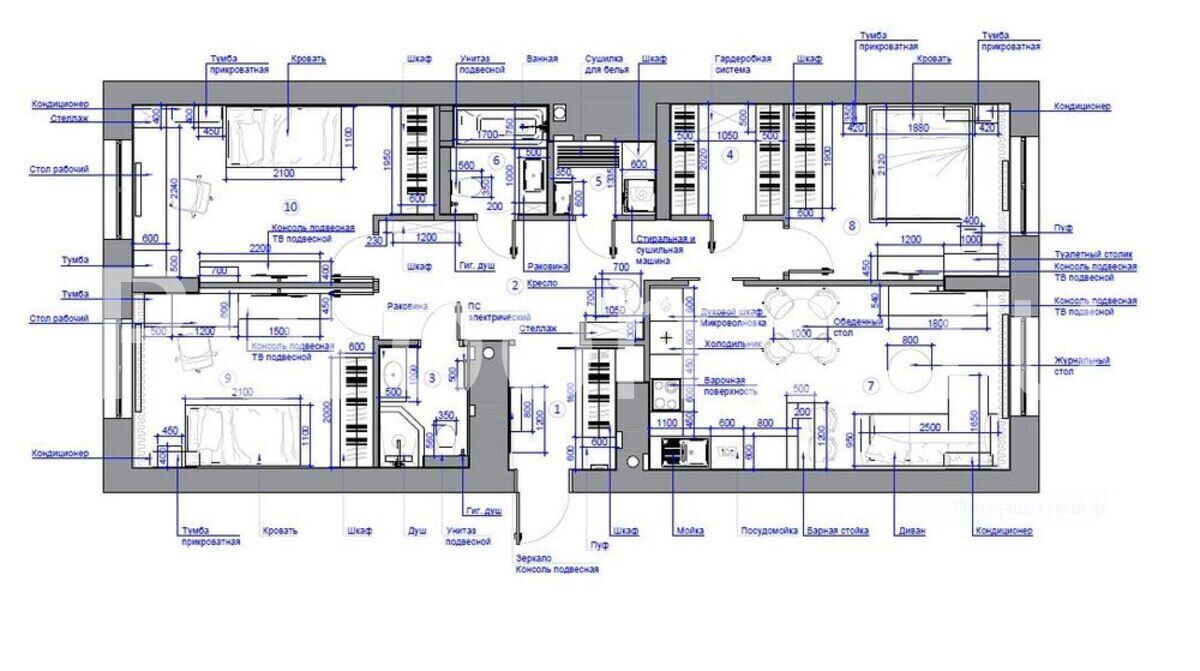
Дизайн этой квартиры выдержан в современном стиле. Светлая цветовая гамма с использованием контрастных акцентов делает интерьер ультрамодным и гармоничным. Интересная архитектура пространства, комбинация различных материалов и оригинальный световой сценарий - все это работает на поддержание концепции современного дизайна.
Дизайн этой квартиры выдержан в современном стиле. Светлая цветовая гамма с использованием контрастных акцентов делает интерьер ультрамодным и гармоничным. Интересная архитектура пространства, комбинация различных материалов и оригинальный световой сценарий - все это работает на поддержание концепции современного дизайна.
