

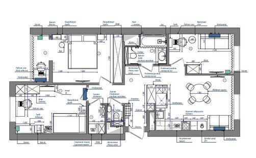
Интерьер в стиле модернизм привлекает своей элегантностью и тщательно продуманной эстетикой. Сдержанная архитектурная композиция, гармоничная палитра с выразительными акцентами и функциональная мебель формируют современный образ квартиры, точно отражающий замысел автора.
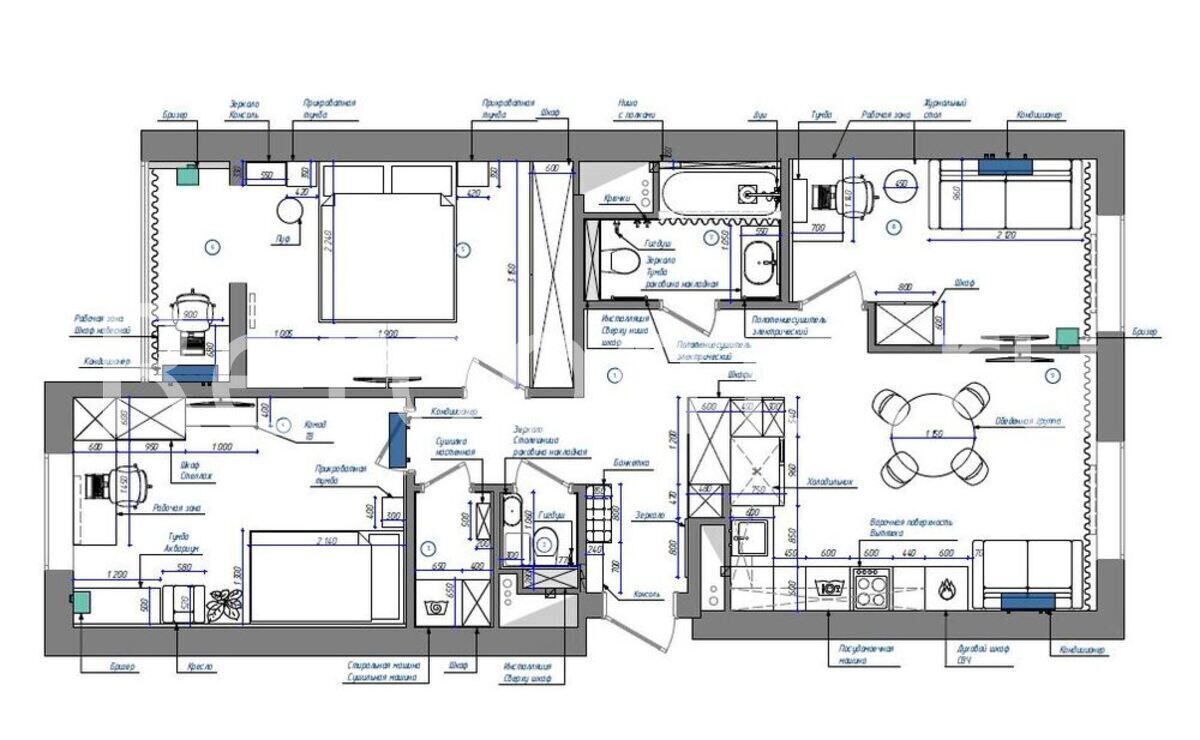
Интерьер в стиле модернизм привлекает своей элегантностью и тщательно продуманной эстетикой. Сдержанная архитектурная композиция, гармоничная палитра с выразительными акцентами и функциональная мебель формируют современный образ квартиры, точно отражающий замысел автора.
