

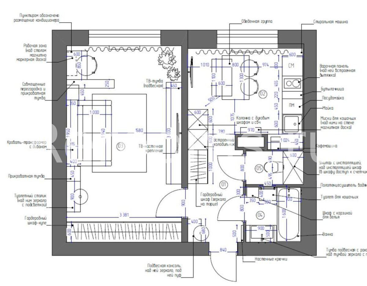
Дизайн-проект однокомнатной квартиры выполнен в стиле лофт. Разноплановая отделка и брутальный декор придают пространству ультрасовременный вид. В интерьере использованы характерные для лофтовой стилистики цвета, такие как серый, графитовый и древесный. Стильная мебель гармонично дополняет общую дизайнерскую концепцию.
Дизайн-проект однокомнатной квартиры выполнен в стиле лофт. Разноплановая отделка и брутальный декор придают пространству ультрасовременный вид. В интерьере использованы характерные для лофтовой стилистики цвета, такие как серый, графитовый и древесный. Стильная мебель гармонично дополняет общую дизайнерскую концепцию.
