

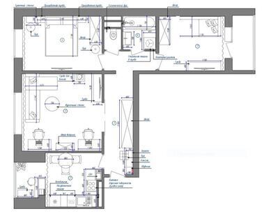
Интерьеры в стиле модернизм, всегда выглядят ультрасовременно и модно. Интересные дизайнерские находки, изысканная цветовая гамма, удобная эргономичная мебель, изящные светильники - в этой квартире все работает на поддержание современной стилистической концепции.
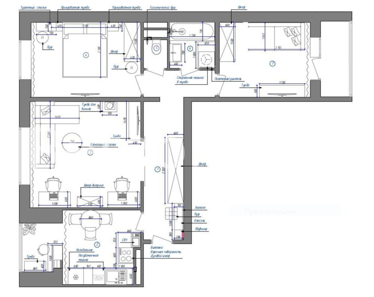
Интерьеры в стиле модернизм, всегда выглядят ультрасовременно и модно. Интересные дизайнерские находки, изысканная цветовая гамма, удобная эргономичная мебель, изящные светильники - в этой квартире все работает на поддержание современной стилистической концепции.
