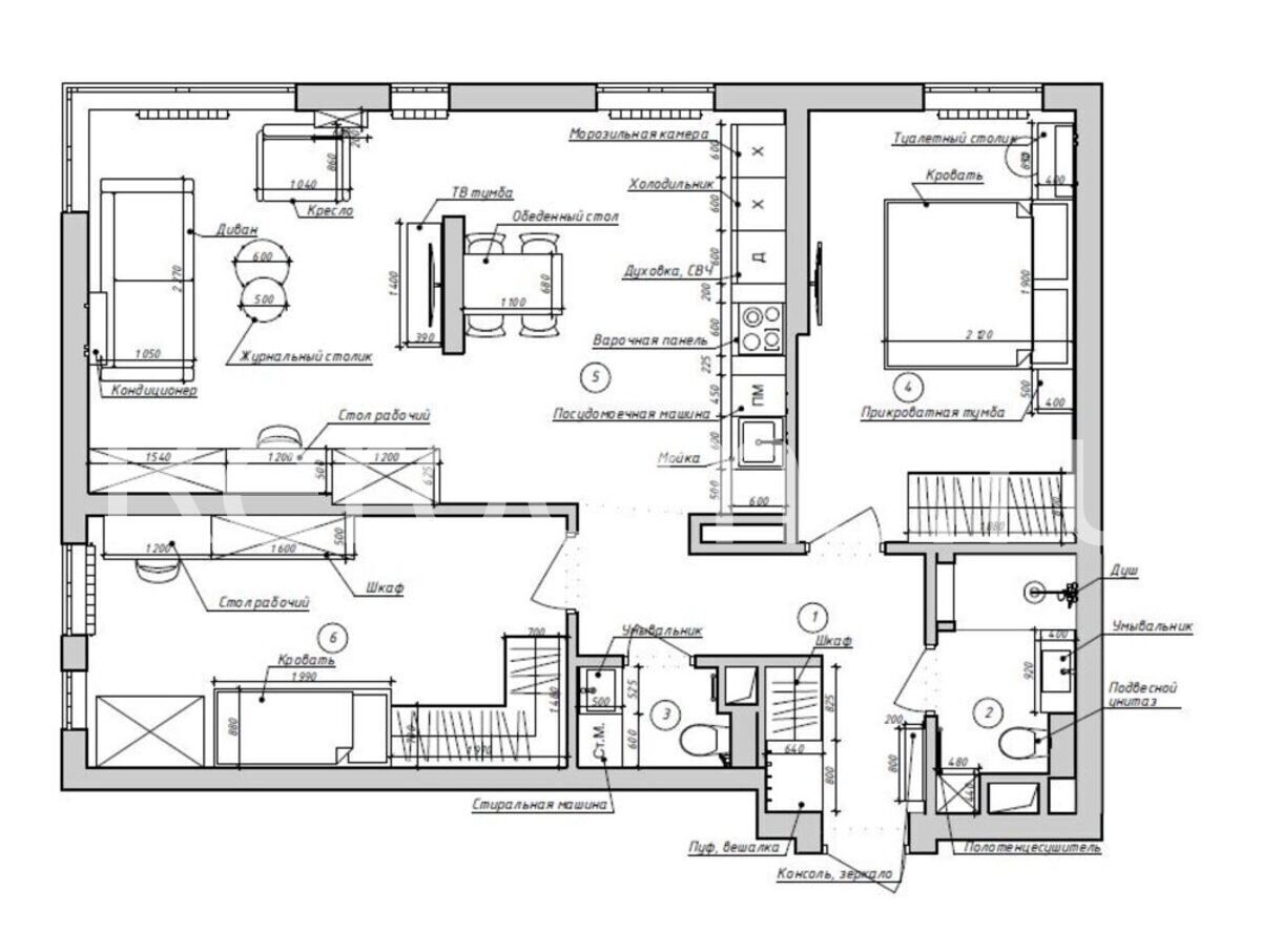
Интерьер, оформленный в стиле модернизм, отличается удобством и ультрасовременным видом. Интересные архитектура пространства, гармоничная цветовая гамма, удобная и функциональная мебель - все это придает пространству этой квартиры современный вид и работает на поддержание выбранной стилистической концепции.
Интерьер, оформленный в стиле модернизм, отличается удобством и ультрасовременным видом. Интересные архитектура пространства, гармоничная цветовая гамма, удобная и функциональная мебель - все это придает пространству этой квартиры современный вид и работает на поддержание выбранной стилистической концепции.
