

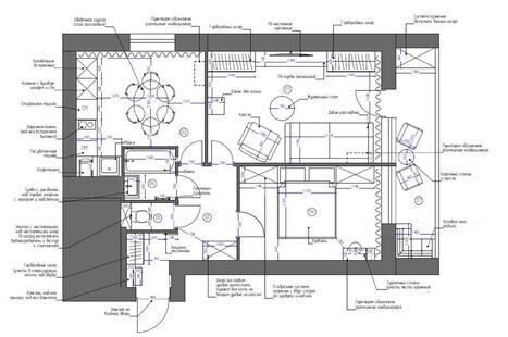
Интерьер, оформленный в стиле модернизм, выглядит очень утонченностью. Различные дизайнерские находки, гармоничная цветовая гамма с яркими акцентами, удобная эргономичная мебель - в этой квартире все работает на поддержание современной стилистической концепции.
Интерьер, оформленный в стиле модернизм, выглядит очень утонченностью. Различные дизайнерские находки, гармоничная цветовая гамма с яркими акцентами, удобная эргономичная мебель - в этой квартире все работает на поддержание современной стилистической концепции.
