

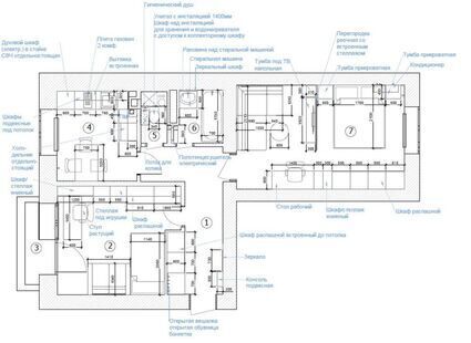
Основные черты стиля контемпорари, такие как простота форм, функциональность, игра контрастов, комбинирование разных фактур, максимум воздуха и естественного света, нашли отражение в дизайн-проекте этой квартиры. Интерьер получился современным и функциональным.
Основные черты стиля контемпорари, такие как простота форм, функциональность, игра контрастов, комбинирование разных фактур, максимум воздуха и естественного света, нашли отражение в дизайн-проекте этой квартиры. Интерьер получился современным и функциональным.
