

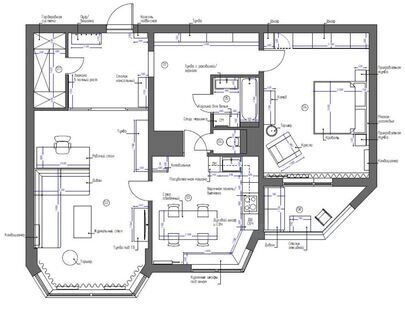
В эклектичном пространстве различные дизайнерские направления гармонично переплетаются, дополняя и подчеркивая друг друга. В интерьере этой трехкомнатной квартиры все тщательно сбалансировано и соответствует выбранной концепции: модернизм, сканди, этнический и эко-стиль здесь идеально сочетаются, формируя стилистический баланс. Материалы и декоративные элементы отличаются высоким качеством и эстетической выразительностью.
В эклектичном пространстве различные дизайнерские направления гармонично переплетаются, дополняя и подчеркивая друг друга. В интерьере этой трехкомнатной квартиры все тщательно сбалансировано и соответствует выбранной концепции: модернизм, сканди, этнический и эко-стиль здесь идеально сочетаются, формируя стилистический баланс. Материалы и декоративные элементы отличаются высоким качеством и эстетической выразительностью.
