

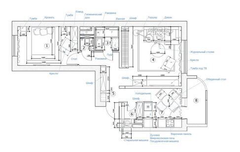
Интерьер этой двухкомнатной квартиры оформлен в стиле лофт. Брутальные текстуры, индустриальные светильники, стеклянные и металлические детали - все это создает в помещении невероятно стильную атмосферу. В цветовой гамме преобладают характерные для лофта оттенки серого и черного, дополненные бежевым и натуральным деревом. Пространство организовано функционально и полностью соответствует выбранной концепции.
Интерьер этой двухкомнатной квартиры оформлен в стиле лофт. Брутальные текстуры, индустриальные светильники, стеклянные и металлические детали - все это создает в помещении невероятно стильную атмосферу. В цветовой гамме преобладают характерные для лофта оттенки серого и черного, дополненные бежевым и натуральным деревом. Пространство организовано функционально и полностью соответствует выбранной концепции.
