

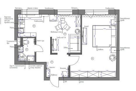
Эта двухкомнатная квартира оформлена в скандинавском стиле, который сочетает простоту, элегантность и лаконичность. Светлая цветовая палитра дополнена яркими акцентами, а натуральные материалы в отделке создают уютную и теплую атмосферу.
Эта двухкомнатная квартира оформлена в скандинавском стиле, который сочетает простоту, элегантность и лаконичность. Светлая цветовая палитра дополнена яркими акцентами, а натуральные материалы в отделке создают уютную и теплую атмосферу.
