

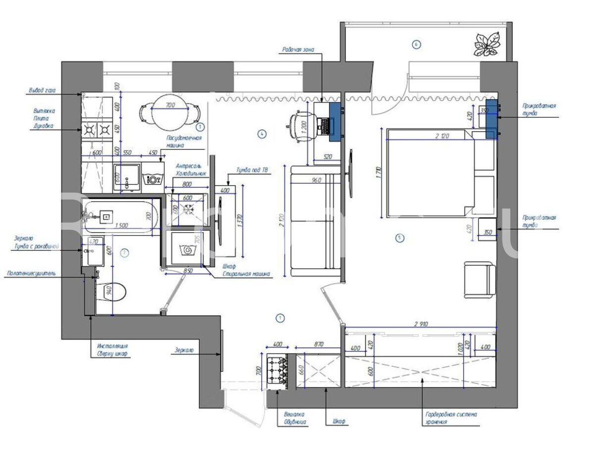
Интерьеры в стиле контемпорари идеально сочетают эстетику и функциональность, отвечая современным требованиям комфорта. Нейтральная базовая палитра, использованная в оформлении этой квартиры, создает спокойную и уютную атмосферу для отдыха. Четкие линии и выразительные формы, характерные для контемпорари, нашли отражение в геометрии потолков, стен, мебели и элементов декора.
Интерьеры в стиле контемпорари идеально сочетают эстетику и функциональность, отвечая современным требованиям комфорта. Нейтральная базовая палитра, использованная в оформлении этой квартиры, создает спокойную и уютную атмосферу для отдыха. Четкие линии и выразительные формы, характерные для контемпорари, нашли отражение в геометрии потолков, стен, мебели и элементов декора.
