

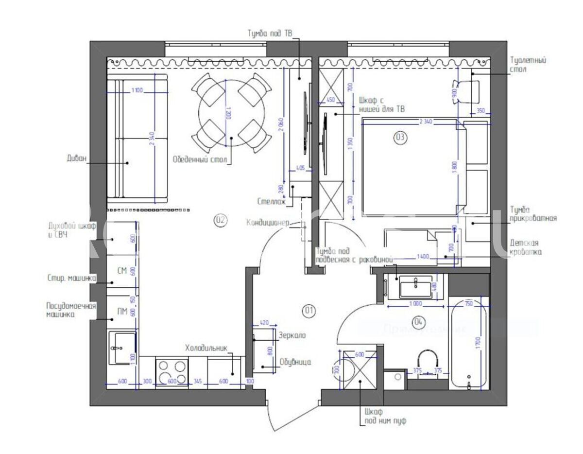
Интерьер, оформленный в стиле модернизм, всегда выглядит актуально и современно. Интересные дизайнерские решения, гармоничная цветовая гамма, удобная и функциональная мебель - все это придает пространству этой квартиры ультрамодный вид и работает на поддержание выбранной стилистической концепции.
Интерьер, оформленный в стиле модернизм, всегда выглядит актуально и современно. Интересные дизайнерские решения, гармоничная цветовая гамма, удобная и функциональная мебель - все это придает пространству этой квартиры ультрамодный вид и работает на поддержание выбранной стилистической концепции.
