

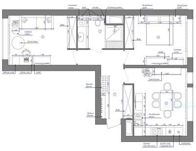
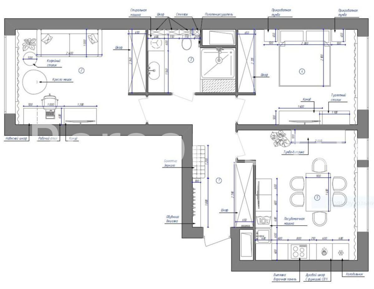
Модернизм в интерьере приветствует игру с пространством и смелые эксперименты с цветом и формой. Утонченный дизайн и изысканный стиль – вот основные характеристики этой двухкомнатной квартиры. Интерьер выполнен в сдержанной цветовой гамме с контрастными акцентами. Здесь каждое помещение интересно по-своему.
Модернизм в интерьере приветствует игру с пространством и смелые эксперименты с цветом и формой. Утонченный дизайн и изысканный стиль – вот основные характеристики этой двухкомнатной квартиры. Интерьер выполнен в сдержанной цветовой гамме с контрастными акцентами. Здесь каждое помещение интересно по-своему.
