

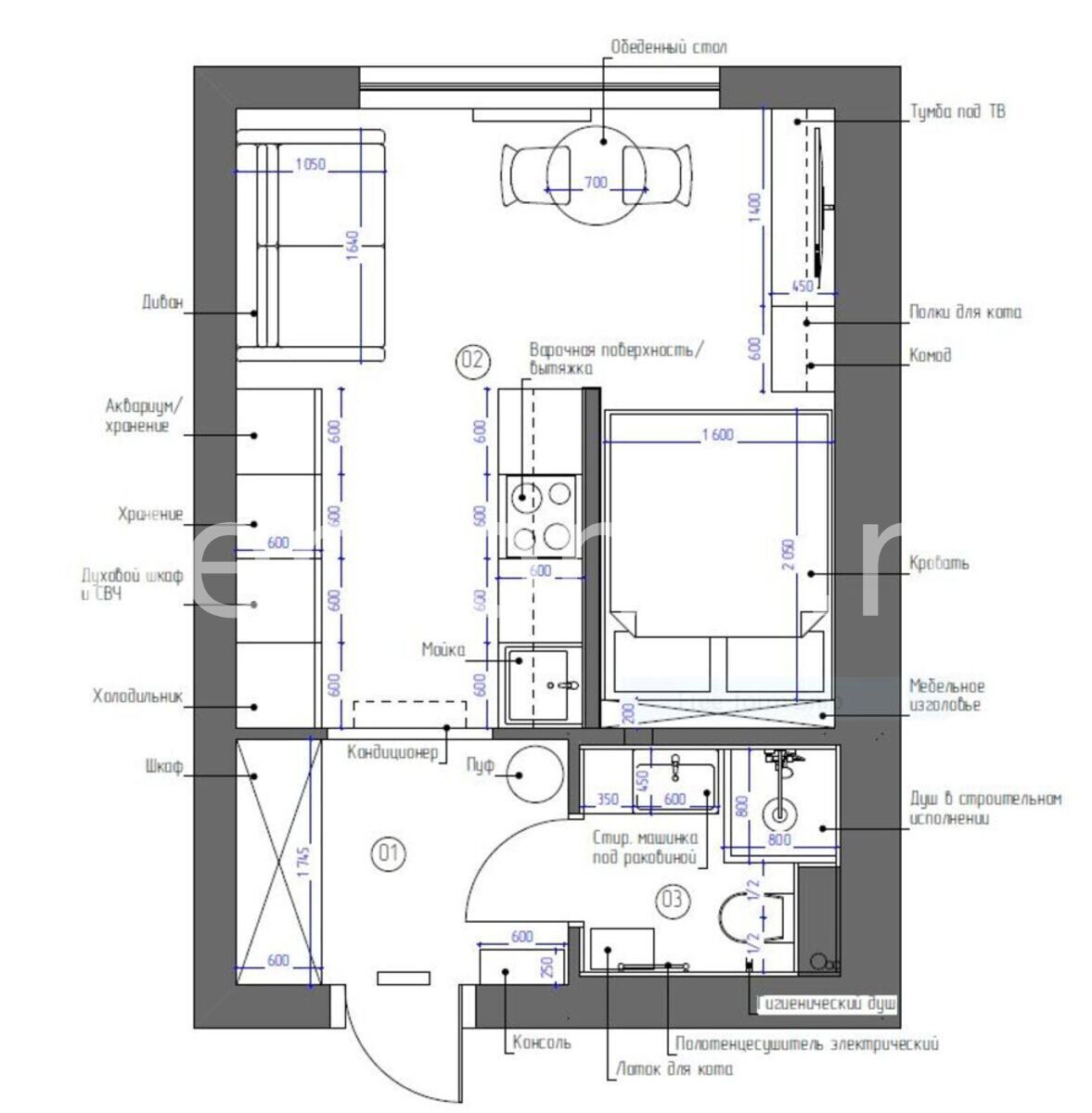
Интерьер этой компактной студии оформлен в современном стиле. Лаконичная мебель, гармоничные цвета и элегантные светильники идеально сочетаются, формируя целостное и уютное пространство.
Интерьер этой компактной студии оформлен в современном стиле. Лаконичная мебель, гармоничные цвета и элегантные светильники идеально сочетаются, формируя целостное и уютное пространство.
