

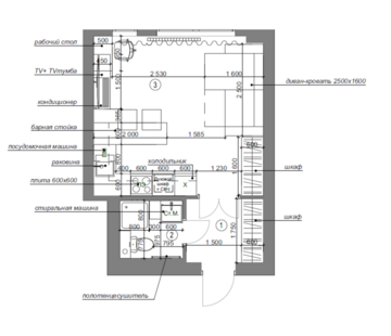
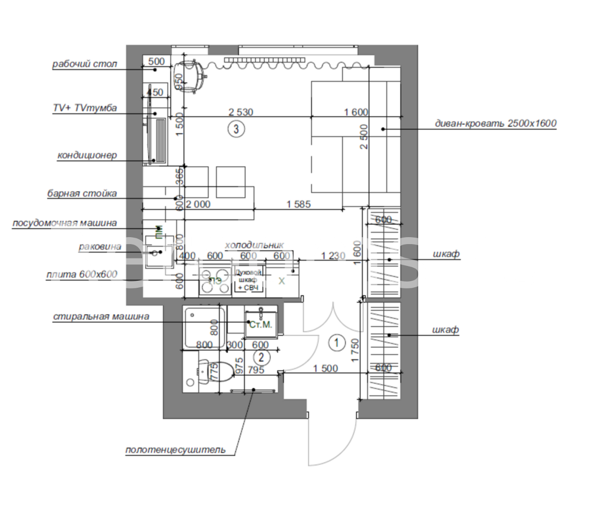
За основу оформления этой небольшой квартиры-студии взят современный стиль. Светлая цветовая гамма, использование разнообразных текстур, высококачественные отделочные материалы, интересный световой сценарий - все это помогло создать комфортный и эстетически привлекательный интерьер.
За основу оформления этой небольшой квартиры-студии взят современный стиль. Светлая цветовая гамма, использование разнообразных текстур, высококачественные отделочные материалы, интересный световой сценарий - все это помогло создать комфортный и эстетически привлекательный интерьер.
