
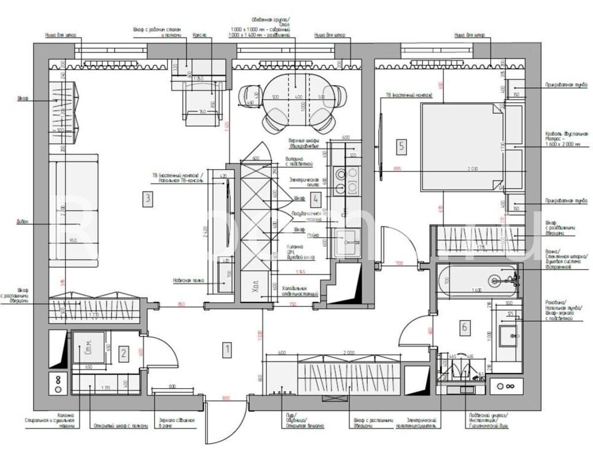
Дизайн этой квартиры выдержан в современном стиле. Контрастная цветовая гамма делает интерьер ультрамодным и красивым. Комбинация различных материалов, стильная мебель и оригинальный световой сценарий - все это смотрится необычайно стильно и гармонично.
Дизайн этой квартиры выдержан в современном стиле. Контрастная цветовая гамма делает интерьер ультрамодным и красивым. Комбинация различных материалов, стильная мебель и оригинальный световой сценарий - все это смотрится необычайно стильно и гармонично.
