

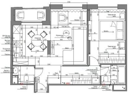
Изящность, легкость и ненавязчивая роскошь - вот основные характеристики стиля арт-деко в интерьере. Дизайн-проект этой трехкомнатной квартиры выполнен в стиле арт-деко. Для него характерны строгие геометрические формы, обилие дорогих текстур и декоративных элементов, нейтральная цветовая гамма, а также эксклюзивные материалы. Каждое помещение в квартире отличается изысканным видом и полностью отвечает стилистической концепции.
Изящность, легкость и ненавязчивая роскошь - вот основные характеристики стиля арт-деко в интерьере. Дизайн-проект этой трехкомнатной квартиры выполнен в стиле арт-деко. Для него характерны строгие геометрические формы, обилие дорогих текстур и декоративных элементов, нейтральная цветовая гамма, а также эксклюзивные материалы. Каждое помещение в квартире отличается изысканным видом и полностью отвечает стилистической концепции.
