

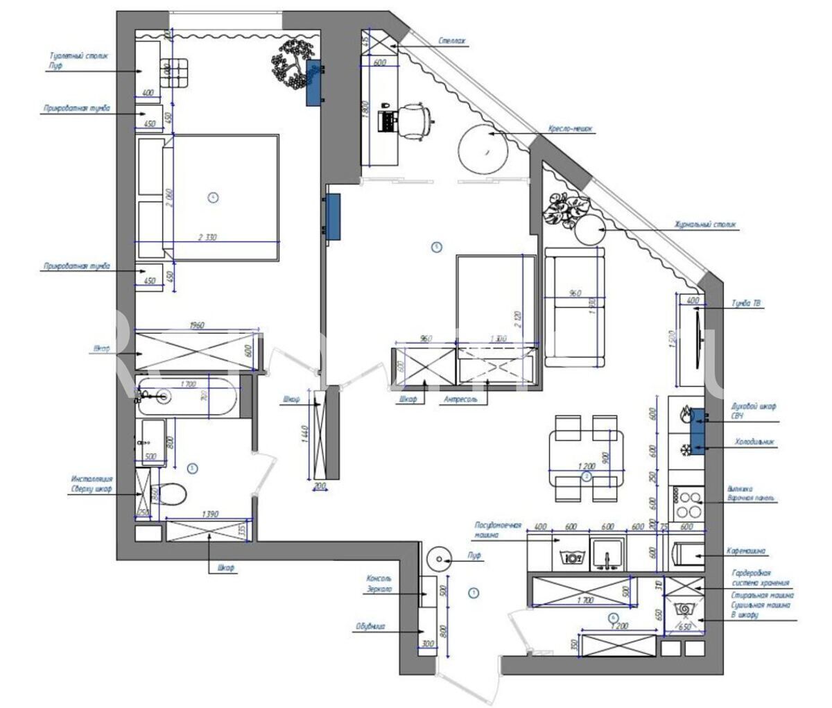
Современный взгляд на модернизм позволяет создать интерьер, в котором свежесть форм сочетается с элегантностью. Стильные акценты, тактильное разнообразие материалов и сдержанные цвета гармонично дополняют функциональную и продуманную обстановку этой квартиры.
Современный взгляд на модернизм позволяет создать интерьер, в котором свежесть форм сочетается с элегантностью. Стильные акценты, тактильное разнообразие материалов и сдержанные цвета гармонично дополняют функциональную и продуманную обстановку этой квартиры.
