

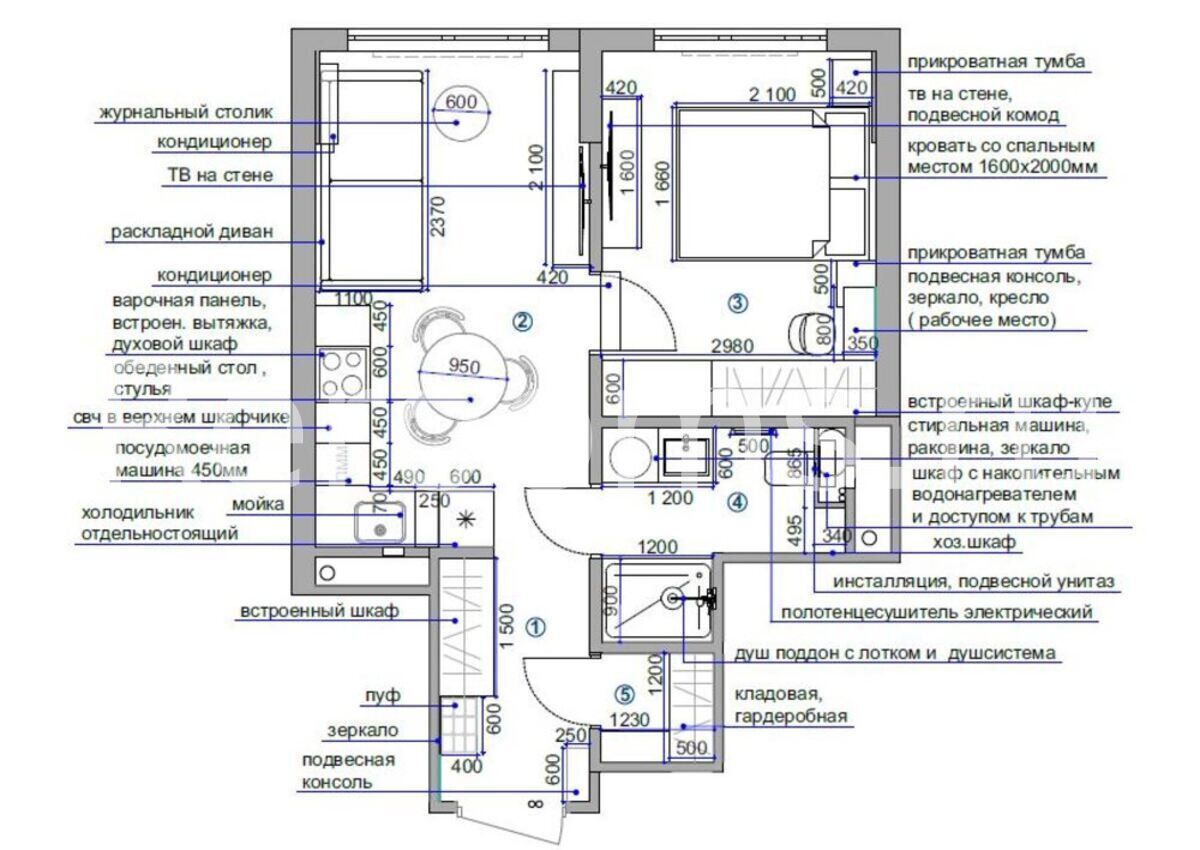
В оформлении этой двухкомнатной квартиры воплощены принципы современного стиля. Спокойная природная палитра с более глубокими акцентами, сочетание различных фактур, использование качественных отделочных материалов и продуманное освещение формируют интерьер, в котором гармонично сочетаются уют и выразительная эстетика.
В оформлении этой двухкомнатной квартиры воплощены принципы современного стиля. Спокойная природная палитра с более глубокими акцентами, сочетание различных фактур, использование качественных отделочных материалов и продуманное освещение формируют интерьер, в котором гармонично сочетаются уют и выразительная эстетика.
