
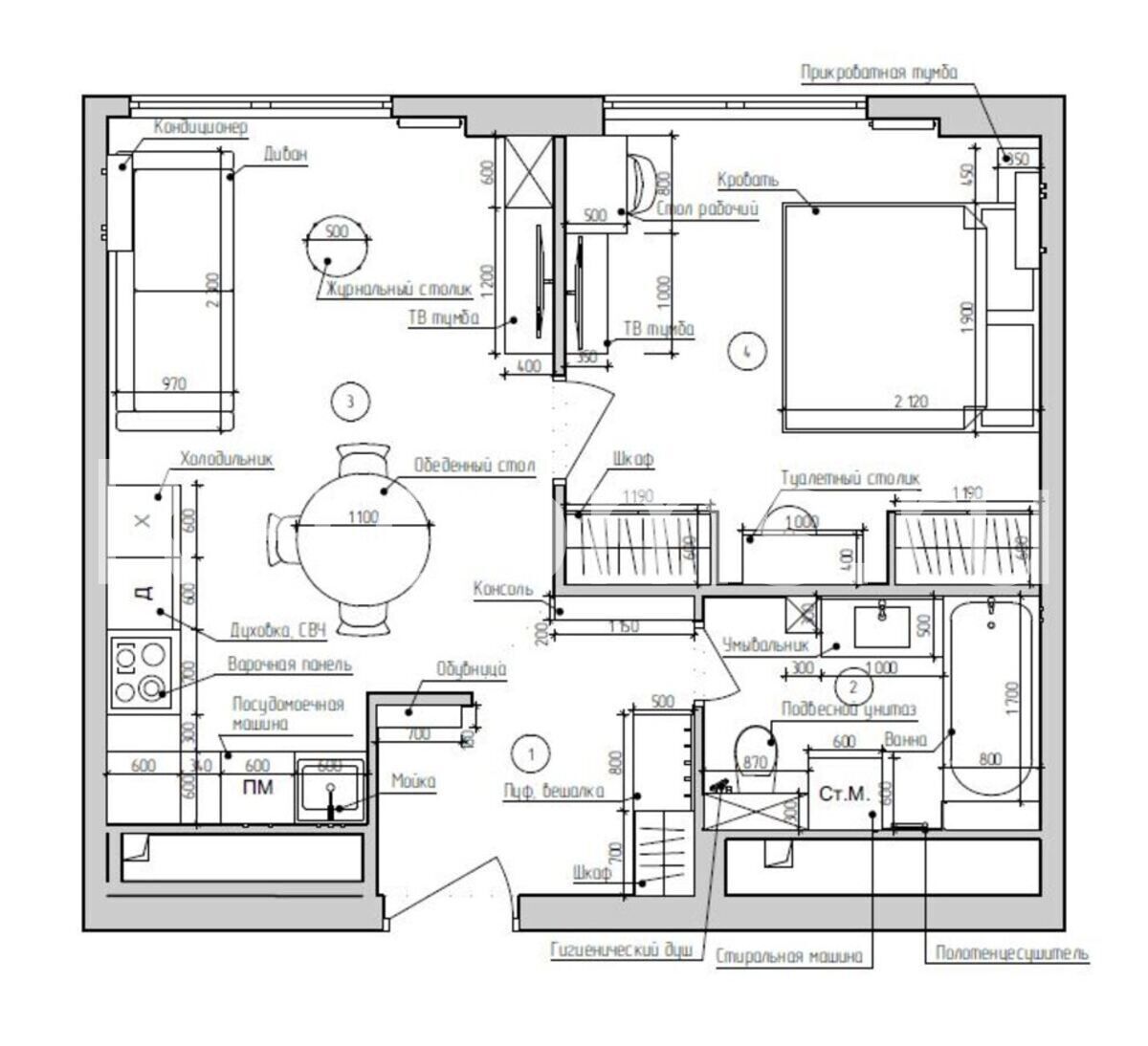
Дизайн-проект двухкомнатной квартиры выполнен в современном стиле. Обилие разнообразных текстур, современные элементы декора в интерьере этой квартиры смотрятся необычайно гармонично и целостно. Разноплановое освещение придает пространству индивидуальный характер, а контрастная цветовая гамма делает его стильным и уникальным.
Дизайн-проект двухкомнатной квартиры выполнен в современном стиле. Обилие разнообразных текстур, современные элементы декора в интерьере этой квартиры смотрятся необычайно гармонично и целостно. Разноплановое освещение придает пространству индивидуальный характер, а контрастная цветовая гамма делает его стильным и уникальным.
