
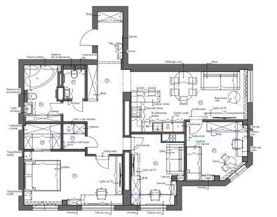
Дизайн этой четырехкомнатной квартиры выполнен в стиле арт-деко и сочетает элегантные формы, четкие линии, богатство роскошных текстур и декоративных элементов. Интерьер оформлен в светлой палитре, где пастельные оттенки бежевого и розового гармонично сочетаются с благородным золотистым и изысканным белым.
Дизайн этой четырехкомнатной квартиры выполнен в стиле арт-деко и сочетает элегантные формы, четкие линии, богатство роскошных текстур и декоративных элементов. Интерьер оформлен в светлой палитре, где пастельные оттенки бежевого и розового гармонично сочетаются с благородным золотистым и изысканным белым.
