
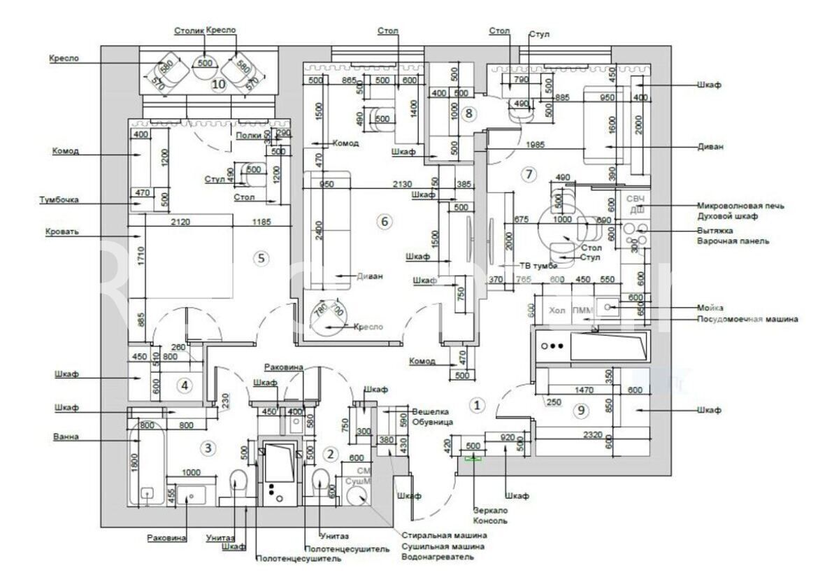
Дизайн-проект двухкомнатной квартиры выполнен в современном стиле. Интересная архитектура пространства, обилие разнообразных текстур, современные элементы декора в интерьере смотрятся необычайно гармонично и целостно. Разноплановое освещение придает помещению индивидуальный характер, а гармоничное сочетание цветов делает пространство стильным и уникальным.
Дизайн-проект двухкомнатной квартиры выполнен в современном стиле. Интересная архитектура пространства, обилие разнообразных текстур, современные элементы декора в интерьере смотрятся необычайно гармонично и целостно. Разноплановое освещение придает помещению индивидуальный характер, а гармоничное сочетание цветов делает пространство стильным и уникальным.
