

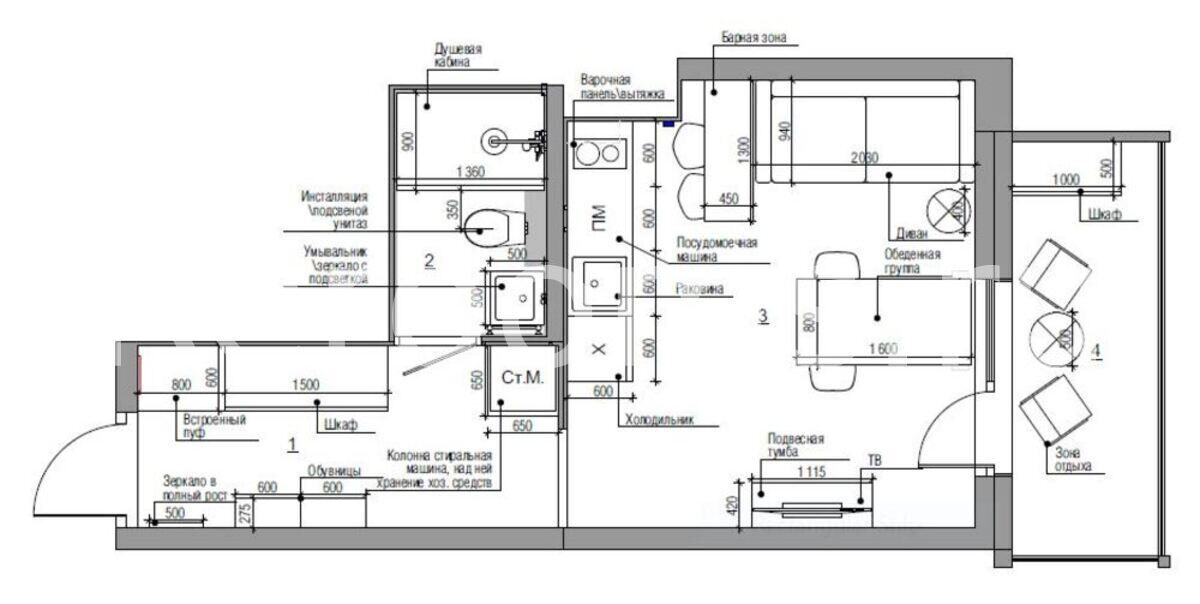
Дизайн этой небольшой квартиры-студии выполнен в стиле модернизм. Разнообразие текстур, дизайнерские находки и современный декор создают гармоничный и цельный образ. Разноплановое освещение подчеркивает индивидуальность пространства, а контрастная палитра делает его стильным и неповторимым.
Дизайн этой небольшой квартиры-студии выполнен в стиле модернизм. Разнообразие текстур, дизайнерские находки и современный декор создают гармоничный и цельный образ. Разноплановое освещение подчеркивает индивидуальность пространства, а контрастная палитра делает его стильным и неповторимым.
