

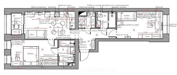
Современный модернизм в интерьере — это тонкое переплетение утончённости и динамики. Смелые решения, разнообразные материалы, благородные оттенки и удобная мебель формируют пространство, в котором каждая деталь подчёркивает целостность замысла.
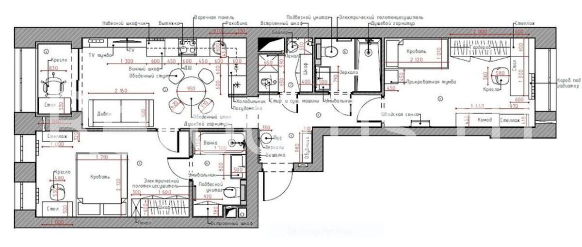
Современный модернизм в интерьере — это тонкое переплетение утончённости и динамики. Смелые решения, разнообразные материалы, благородные оттенки и удобная мебель формируют пространство, в котором каждая деталь подчёркивает целостность замысла.
